登录
免费注册
微信公众号
手机版
地图找房
网站导航
新房
新房列表
优质好房
特惠房源
楼盘速递
楼盘问答
专家荐房
房博士
户型大全
地图找房
二手房
出售信息
出租信息
发布信息
资讯
楼市行情
楼盘导购
工程进度
小编陪购
本地楼市
小编说房
楼市快讯
房产专题
家装
学装修
找公司
选方案
选方案
看工地
看案例
发招标
团家装
买建材
天门
仙桃
潜江
孝感
荆州
新房
新房
二手房
租房
资讯
搜索
首页
新房
资讯
二手
看房团
邻校房
优惠团
荐房
楼盘地图
您当前位置:
天门房网
>
新房列表
>
天门新城秀水江景湾
天门新城秀水江景湾
已经售完
400-003-0728 转 129#
楼盘免费咨询电话
楼盘首页
楼盘详情
楼盘动态
沙盘
户型
资讯
相册
问答
行情走势
更新于2019年11月15日 点击:
视频加载中
播放
播放
重播
全屏
静音
最大音量
您的浏览器版本过低
需要升级
参考均价
已售完
房贷计算器
降价新优惠通知我
优惠折扣
暂无
[我要看房]
最新看房活动、优惠信息免费通知我
参与人数:24人
立即申请
开盘时间
交房时间
楼盘地址
天门人民大道与西湖路交汇处[城西]
查看地图
主力户型
三室(2)
全部户型
物业公司
物 业 费
400-003-0728 转 129#
楼盘免费咨询电话
安全通话隐藏真实号码,致电售楼处了解更多信息
天门新城秀水江景湾
二手房
更多二手房
天门【秀水江景湾】
3室2厅1卫 109m²
65.00万
天门新城秀水江景湾
资讯
更多资讯
天门新城秀水江景湾
问答
更多问答
提交问题
天门新城秀水江景湾
户型图
三室(2)
更多户型
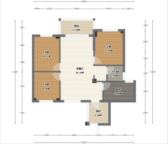
B户型 3室2厅1卫 建筑面积:108.
3室2厅1卫2阳台
建面约108.54㎡
A户型 3室2厅2卫 建筑面积:111.
3室2厅2卫2阳台
建面约111.65㎡
您可能想看
西湖文苑
城西
参考均价:4800元/m²
交通便利
商圈附近
邻校楼盘
现房销售
碧水园·花畔里
城西
参考均价:5700元/m²
宜居生态
高档小区
交通便利
商圈附近
盛世江尚
城西
参考均价:6000元/m²
雁叫名苑三期
老城区
参考均价:5400元/m²
交通便利
发布房源
房贷计算器
微信公众号
微信客服
获取优惠
您的称呼:
您的电话:
提交信息
地图找房
15572802720
新房列表
|
户型大全
|
楼盘问答
|
特惠团