天门房网
您当前位置:天门房网>天门楼市>楼市快讯

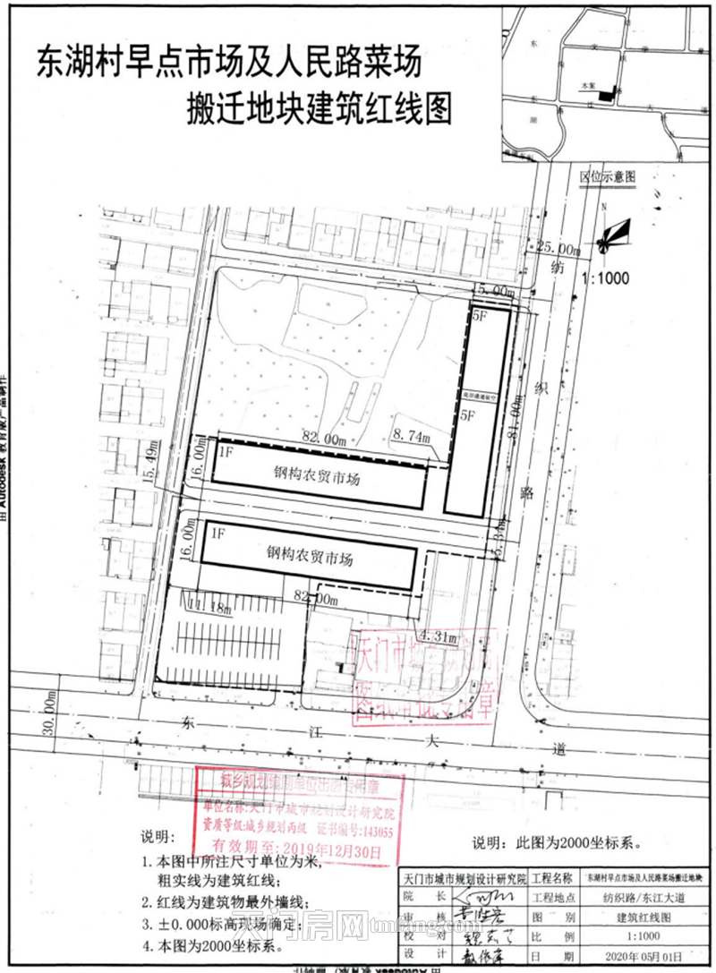
天门东湖村早点市场建设项目批后公告

2021年06月29日 15:32     小编:天小爱          点击:3939

扫描到手机

扫描到手机  新闻随时看

扫一扫,用手机看文本
更加方便分享给朋友

扫描到手机

分享到:
获取优惠