


建设单位:湖北枫情置业有限公司
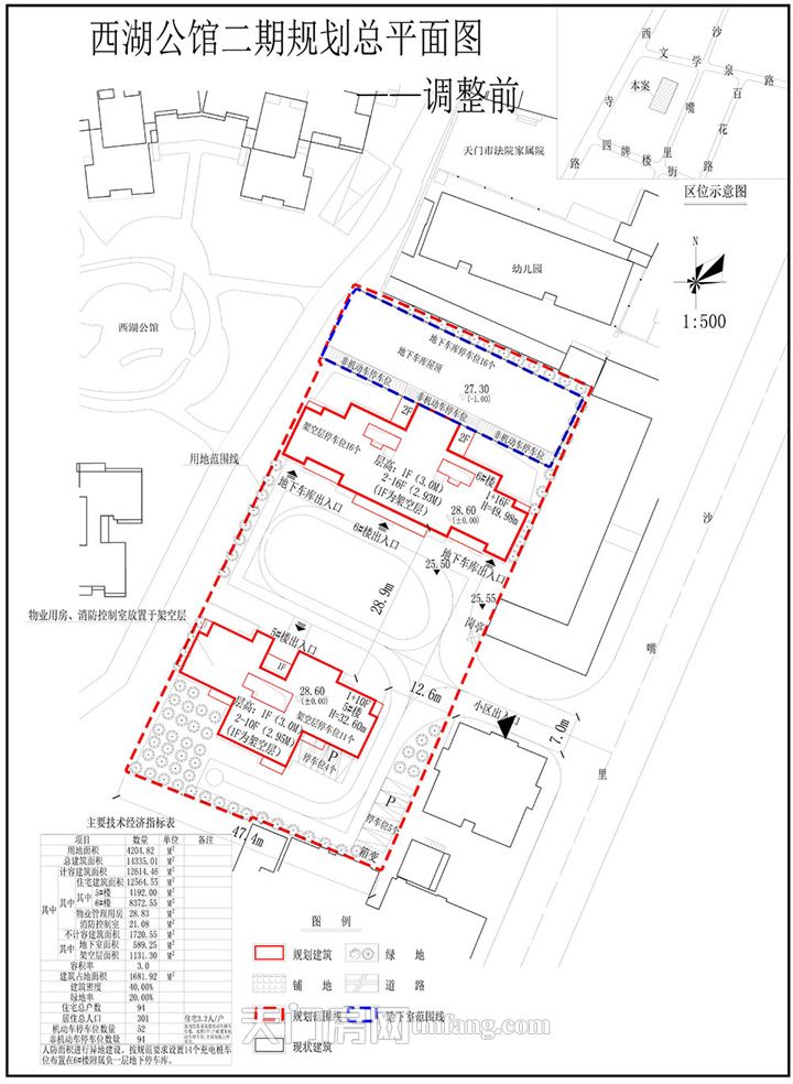
建设项目:西湖公馆二期
设计单位:天门市城市规划设计研究院
总用地面积:4204.82平方米
总建筑面积:14419.01平方米
计容总建筑面积:12614.46平方米
容积率:3.0
绿地率:20.00%
建筑密度:40.00%
公示日期: 2023年12月28日---2024年1月8日
说 明:
湖北枫情置业有限公司申报的西湖公馆二期项目,位于文学泉路以南,西寺路以东。本次调整规划与上次公示方案主要有如下调整:1、项目东北角增加1栋1层配电房;2、5#、6#楼顶层局部调整。项目总建筑面积为14419.01平方米,计容总建筑面积为12614.46平方米,容积率为3.0,具体详见调整规划总平面图和效果图。经我局审查,拟同意批准该项目规划方案,现将拟批准的规划总平面图予以公示。有关单位或个人如对此规划有异议,请在公示期间向市自然资源和规划局提出书面异议书。

