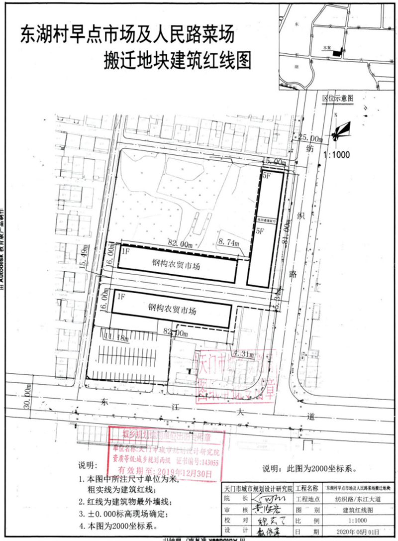
东湖村早点市场建设项目批后公告...[详细]
天门南湖大市场批后公告...[详细]
天门市天园置业有限公司申报的天门市友谊社区公共租赁住房项目,位于钟惺大道与西环路交汇处。...[详细]
天门市竟陵街道办 处永丰社区居民委员会申报的天门市竟陵街道办事处全民健身中心、永丰社区服务中心、永丰农贸市场和永丰社区全民健身广场项目,位于学院路以东,华西路以西。...[详细]
天门东林房地产开发有限公司的群力安置小区项目,位于西湖路以东,南洋大道以南。...[详细]
品牌房企的房子,靠谱!...[详细]
为爱安家,让家更温暖,只想给你美好新生活!...[详细]
欢迎回家,祝您合家幸福!...[详细]
楚天世纪城“迎五一幸运大转盘”抽奖活动开始了!...[详细]
项目拟新建1栋5层公寓楼、2栋18层住宅楼。...[详细]
值班:房网小李
微信:2355542874
热线:15629299745
5000元/m²
陆羽大道与竟东路交汇处
5400元/m²
天门市陆羽大道以南、东方龙酒店以北
待定
天门市西湖路与天门河交会处
4500元/m²
天门市钟惺大道西(天门中学西侧)
4700元/m²
天门市汇侨大道与义乌路交汇处
6000元/m²
天门市钟惺大道大润发对面(老农业局)
5700元/m²
天门市状元路西侧·实验高中东侧100米(北湖公园西岸)
天门市状元路以西小南湖游园北侧
4800元/m²
天门市北湖大道与广沟路交汇处
5300元/m²
天门市鸿渐路与文学泉街交汇处
4100元/m²
天门市南洋大道与义乌路交口(华泰丽晶花园)